Mimar Sinan Fine Arts University Institutional Repository
DSpace@MSGSÜ digitally stores academic resources such as books, articles, dissertations, bulletins, reports, research data published directly or indirectly by Mimar Sinan Fine Arts University in international standarts, helps track the academic performance of the university, provides long term preservation for resources and makes publications available to Open Access in accordance with their copyright to increase the effect of publications.
Search MSGSÜ
Show simple item record
| dc.contributor.author | Demir, Ataman | |
| dc.coverage.spatial | Kahraman Sokak No: 39-41, Zenginler Mahallesi, Antakya, Hatay, Türkiye | |
| dc.creator | Demir, Ataman | |
| dc.date.accessioned | 2025-12-01T08:11:45Z | |
| dc.date.available | 2025-12-01T08:11:45Z | |
| dc.date.issued | 1985 | |
| dc.date.issued | 1991 | |
| dc.identifier | R1 | |
| dc.identifier.uri | https://hdl.handle.net/20.500.14124/10196 | |
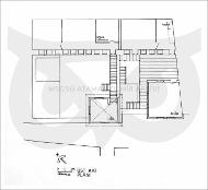
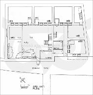
| dc.description.abstract | Antakya Tarihi Kent Merkezi, Zenginler Mahallesi, Kahraman Sokak No: 39-41’deki binaya ait 36 renkli, 19 siyah-beyaz fotoğraf ve 5 rölöve çizimini içermektedir. | en_US |
| dc.format | Pozitif film (orijinal fotoğraflar); JPEG (renkli ve siyah-beyaz fotoğraflar), JPEG/TIFF (rölöve çizimleri) | |
| dc.language.iso | tur | tr |
| dc.relation.ispartofseries | Envanter No: R1 | |
| dc.rights | © MSGSÜ Ataman Demir Arşivi | en_US |
| dc.source | Ataman Demir Arşivi | en_US |
| dc.subject | Antakya (Türkiye)--Binalar, yapılar, vb. | en_US |
| dc.subject | Antakya, Türkiye, Geleneksel mimari, Yerel mimarlık, Mimarsız mimarlık, Tarihi bina, Mimari koruma, Rölöve çizimi, İç–dış fotoğraf | en_US |
| dc.title | Zenginler Mahallesi Kahraman Sokak No: 39-41 | en_US |
| dc.type | photograph; drawing / architectural plan | en_US |
| dc.relation.publicationcategory | Diğer | en_US |
Files in this item
- Name:
- R 1A P8253084-AD-low.tif
- Size:
- 2.788Mb
- Format:
- TIFF image
- Name:
- R1 1987002-AD-low.jpg
- Size:
- 1.032Mb
- Format:
- JPEG image
- Name:
- R1 1987005-AD_ekim_1987-low.jpg
- Size:
- 997.9Kb
- Format:
- JPEG image
- Name:
- R1 1987008-AD-low.jpg
- Size:
- 1.271Mb
- Format:
- JPEG image
- Name:
- R1 1991001-AD_mayis_1991_kahra ...
- Size:
- 1013.Kb
- Format:
- JPEG image
- Name:
- R1 1991004-AD_mayis_1991-low.jpg
- Size:
- 1.126Mb
- Format:
- JPEG image
- Name:
- R1 2002003-AD_ekim_2002-low.jpg
- Size:
- 1.299Mb
- Format:
- JPEG image
- Name:
- R1 2002006-AD-low.jpg
- Size:
- 759.8Kb
- Format:
- JPEG image
- Name:
- R1 2002009-AD_ekim_2002-low.jpg
- Size:
- 1.012Mb
- Format:
- JPEG image
- Name:
- R1 2002012-AD_ekim_2002-low.jpg
- Size:
- 1.128Mb
- Format:
- JPEG image
- Name:
- R1 2002015-AD-low.jpg
- Size:
- 1.271Mb
- Format:
- JPEG image
- Name:
- R1A 1991002-AD_mayis_1991-low.jpg
- Size:
- 797.3Kb
- Format:
- JPEG image
- Name:
- R1 100-AD-low.jpg
- Size:
- 1.150Mb
- Format:
- JPEG image
- Name:
- R1 1987003-AD-low.jpg
- Size:
- 971.9Kb
- Format:
- JPEG image
- Name:
- R1 1987006-AD-low.jpg
- Size:
- 965.5Kb
- Format:
- JPEG image
- Name:
- R1 1987009-AD_ekim_1987-low.tif
- Size:
- 3.697Mb
- Format:
- TIFF image
- Name:
- R1 1991002-AD_mayis_1991-low.jpg
- Size:
- 844.2Kb
- Format:
- JPEG image
- Name:
- R1 2002001-AD-low.jpg
- Size:
- 980.2Kb
- Format:
- JPEG image
- Name:
- R1 2002004-AD-low.jpg
- Size:
- 787.1Kb
- Format:
- JPEG image
- Name:
- R1 2002007-AD-low.jpg
- Size:
- 711.1Kb
- Format:
- JPEG image
- Name:
- R1 2002010-AD-low.jpg
- Size:
- 832.5Kb
- Format:
- JPEG image
- Name:
- R1 2002013-AD-low.jpg
- Size:
- 1.045Mb
- Format:
- JPEG image
- Name:
- R1 2002016-AD_ekim_2002-low.jpg
- Size:
- 1.343Mb
- Format:
- JPEG image
- Name:
- R1A P8253085-AD-low.jpg
- Size:
- 851.9Kb
- Format:
- JPEG image
- Name:
- R1 1987001-AD-low.jpg
- Size:
- 1.062Mb
- Format:
- JPEG image
- Name:
- R1 1987004-AD-low.jpg
- Size:
- 948.6Kb
- Format:
- JPEG image
- Name:
- R1 1987007-AD-low.jpg
- Size:
- 1.247Mb
- Format:
- JPEG image
- Name:
- R1 1987010-AD-low.jpg
- Size:
- 1.427Mb
- Format:
- JPEG image
- Name:
- R1 1991003-AD_mayis_1991-low.jpg
- Size:
- 1.031Mb
- Format:
- JPEG image
- Name:
- R1 2002002-AD-low.jpg
- Size:
- 1.350Mb
- Format:
- JPEG image
- Name:
- R1 2002005-AD-low.jpg
- Size:
- 540.1Kb
- Format:
- JPEG image
- Name:
- R1 2002008-AD-low.jpg
- Size:
- 752.8Kb
- Format:
- JPEG image
- Name:
- R1 2002011-AD-low.jpg
- Size:
- 934.0Kb
- Format:
- JPEG image
- Name:
- R1 2002014-AD-low.jpg
- Size:
- 1.192Mb
- Format:
- JPEG image
- Name:
- R1A 1991001-AD_mayis_1991-low.jpg
- Size:
- 802.9Kb
- Format:
- JPEG image
- Name:
- R1A P8253086-AD-low.jpg
- Size:
- 940.3Kb
- Format:
- JPEG image
- Name:
- R1_ 1-low.jpg
- Size:
- 282.5Kb
- Format:
- JPEG image
- Name:
- R1_ 2-low.jpg
- Size:
- 119.0Kb
- Format:
- JPEG image
- Name:
- R1_ 3-low.jpg
- Size:
- 119.2Kb
- Format:
- JPEG image
- Name:
- R1_ 4-low.jpg
- Size:
- 113.4Kb
- Format:
- JPEG image
- Name:
- R1_ 5-low.jpg
- Size:
- 121.3Kb
- Format:
- JPEG image
- Name:
- R1_ 6-low.jpg
- Size:
- 116.6Kb
- Format:
- JPEG image
- Name:
- R1_ 7-low.jpg
- Size:
- 122.2Kb
- Format:
- JPEG image
- Name:
- R1_ 8-low.jpg
- Size:
- 121.6Kb
- Format:
- JPEG image
- Name:
- R1_ 9-low.jpg
- Size:
- 128.7Kb
- Format:
- JPEG image
- Name:
- R1_ 10-low.jpg
- Size:
- 135.0Kb
- Format:
- JPEG image
- Name:
- R1_ 11-low.jpg
- Size:
- 116.5Kb
- Format:
- JPEG image
- Name:
- R1_ 12-low.jpg
- Size:
- 2.096Mb
- Format:
- JPEG image
- Name:
- R1_ 13-low.jpg
- Size:
- 231.3Kb
- Format:
- JPEG image
- Name:
- R1_ 14-low.jpg
- Size:
- 227.1Kb
- Format:
- JPEG image
- Name:
- R1_ 15-low.jpg
- Size:
- 220.2Kb
- Format:
- JPEG image
- Name:
- R1_ 16-low.jpg
- Size:
- 244.8Kb
- Format:
- JPEG image
- Name:
- R1_ 17-low.jpg
- Size:
- 221.4Kb
- Format:
- JPEG image
- Name:
- R1_ 18-low.jpg
- Size:
- 225.4Kb
- Format:
- JPEG image
- Name:
- R1_-low.jpg
- Size:
- 457.0Kb
- Format:
- JPEG image
- Name:
- R1 üst kat-AD-low.jpg
- Size:
- 347.7Kb
- Format:
- JPEG image
- Name:
- R1_avlu katı planı-AD-low.tif
- Size:
- 5.417Mb
- Format:
- TIFF image
- Name:
- R1_avlu katı-AD-low.jpg
- Size:
- 440.6Kb
- Format:
- JPEG image
- Name:
- R1_avlu_rnk-AD-low.jpg
- Size:
- 585.8Kb
- Format:
- JPEG image
- Name:
- R1_üst_rnk-AD-low.jpg
- Size:
- 493.1Kb
- Format:
- JPEG image
This item appears in the following Collection(s)
-
Antakya Tarihi Kent Koleksiyonu [0]
Ataman Demir tarafından hazırlanmış, Antakya’nın geleneksel evlerine ait fotoğraflar, rölöveler ve kentsel mirası belgeleyen özel bir seçki.
Show simple item record