Mimar Sinan Güzel Sanatlar Üniversitesi Açık Bilim, Sanat Arşivi
Açık Bilim, Sanat Arşivi, Mimar Sinan Güzel Sanatlar Üniversitesi tarafından doğrudan ve dolaylı olarak yayınlanan; kitap, makale, tez, bildiri, rapor gibi tüm akademik kaynakları uluslararası standartlarda dijital ortamda depolar, Üniversitenin akademik performansını izlemeye aracılık eder, kaynakları uzun süreli saklar ve yayınların etkisini artırmak için telif haklarına uygun olarak Açık Erişime sunar.MSGSÜ'de Ara
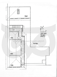
Şeyh Ali Mahallesi Güngör Sokak No: 26 (Abdülgani Türkmen evi)
| dc.coverage.spatial | Güngör Sokak, Şeyh Ali Mahallesi, Antakya, Hatay, Türkiye | en_US |
| dc.creator | Demir, Ataman | |
| dc.date.accessioned | 2026-04-22T08:37:55Z | |
| dc.date.available | 2026-04-22T08:37:55Z | |
| dc.date.created | 1973 | en_US |
| dc.identifier | R15 | en_US |
| dc.identifier.uri | https://hdl.handle.net/20.500.14124/11001 | |
| dc.description.abstract | Antakya Tarihi Kent Merkezi, Şeyh Ali Mahallesi Güngör Sokak No: 26 (Abdülgani Türkmen evi)'deki binaya ait 11 renkli, 13 siyah-beyaz fotoğraf ve 6 rölöve çizimini içermektedir. | en_US |
| dc.format | Pozitif film (orijinal fotoğraflar); JPEG (renkli ve siyah-beyaz fotoğraflar), JPEG/TIFF (rölöve çizimleri) | en_US |
| dc.language.iso | tur | en_US |
| dc.publisher | Mimar Sinan Güzel Sanatlar Üniversitesi | en_US |
| dc.rights | © MSGSÜ Ataman Demir Arşivi | en_US |
| dc.source | Ataman Demir Arşivi | en_US |
| dc.subject | Antakya (Türkiye)--Binalar, yapılar, vb. | en_US |
| dc.subject | Geleneksel mimari | en_US |
| dc.subject | Yerel mimarlık | en_US |
| dc.subject | Mimarsız mimarlık | en_US |
| dc.subject | Tarihi bina | en_US |
| dc.subject | Mimari koruma | en_US |
| dc.title | Şeyh Ali Mahallesi Güngör Sokak No: 26 (Abdülgani Türkmen evi) | en_US |
| dc.type | photograph | en_US |
| dc.relation.publicationcategory | Görsel Materyal | en_US |
Bu öğenin dosyaları:
Bu öğe aşağıdaki koleksiyon(lar)da görünmektedir.
-
Antakya Tarihi Kent Koleksiyonu [42]
Ataman Demir tarafından hazırlanmış, Antakya’nın geleneksel evlerine ait fotoğraflar, rölöveler ve kentsel mirası belgeleyen özel bir seçki.












































