Mimar Sinan Fine Arts University Institutional Repository
DSpace@MSGSÜ digitally stores academic resources such as books, articles, dissertations, bulletins, reports, research data published directly or indirectly by Mimar Sinan Fine Arts University in international standarts, helps track the academic performance of the university, provides long term preservation for resources and makes publications available to Open Access in accordance with their copyright to increase the effect of publications.Search MSGSÜ
Kurtuluş Caddesi Ülkü Sokak No: 19, Naci Neccarlı Evi
| dc.coverage.spatial | Ülkü Sokak, Kurtuluş Caddesi, Antakya, Hatay, Türkiye | en_US |
| dc.creator | Demir, Ataman | |
| dc.date.accessioned | 2026-04-23T21:48:09Z | |
| dc.date.available | 2026-04-23T21:48:09Z | |
| dc.date.created | 1987 | en_US |
| dc.identifier | R27 | en_US |
| dc.identifier.uri | https://hdl.handle.net/20.500.14124/11014 | |
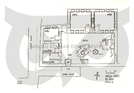
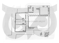
| dc.description.abstract | Antakya Tarihi Kent Merkezi, Kurtuluş Caddesi, Ülkü Sokak, No: 19 Naci Neccarlı evine ait 8 renkli fotoğraf ve 3 rölöve çizimini içermektedir. | en_US |
| dc.format | Pozitif film (orijinal fotoğraflar); JPEG (renkli ve siyah-beyaz fotoğraflar), JPEG/TIFF (rölöve çizimleri) | en_US |
| dc.language.iso | tur | en_US |
| dc.publisher | Mimar Sinan Güzel Sanatlar Üniversitesi | en_US |
| dc.rights | © MSGSÜ Ataman Demir Arşivi | en_US |
| dc.source | Ataman Demir Arşivi | en_US |
| dc.subject | Antakya (Türkiye)--Binalar, yapılar, vb. | en_US |
| dc.subject | Geleneksel mimari | en_US |
| dc.subject | Yerel mimarlık | en_US |
| dc.subject | Mimarsız mimarlık | en_US |
| dc.subject | Tarihi bina | en_US |
| dc.subject | Mimari koruma | en_US |
| dc.title | Kurtuluş Caddesi Ülkü Sokak No: 19, Naci Neccarlı Evi | en_US |
| dc.type | photograph | en_US |
| dc.relation.publicationcategory | Görsel Materyal | en_US |
Files in this item
This item appears in the following Collection(s)
-
Antakya Tarihi Kent Koleksiyonu [42]
Ataman Demir tarafından hazırlanmış, Antakya’nın geleneksel evlerine ait fotoğraflar, rölöveler ve kentsel mirası belgeleyen özel bir seçki.

























