Mimar Sinan Fine Arts University Institutional Repository
DSpace@MSGSÜ digitally stores academic resources such as books, articles, dissertations, bulletins, reports, research data published directly or indirectly by Mimar Sinan Fine Arts University in international standarts, helps track the academic performance of the university, provides long term preservation for resources and makes publications available to Open Access in accordance with their copyright to increase the effect of publications.Search MSGSÜ
Zenginler Mah. Nakib Camii
| dc.coverage.spatial | Zenginler Mah. Nakib Camii Civarı, Antakya / Hatay, Türkiye | en_US |
| dc.creator | Demir, Ataman | |
| dc.date.accessioned | 2026-04-10T09:16:18Z | |
| dc.date.available | 2026-04-10T09:16:18Z | |
| dc.date.created | 1973 | en_US |
| dc.identifier | R7 | en_US |
| dc.identifier.uri | https://hdl.handle.net/20.500.14124/10761 | |
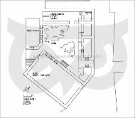
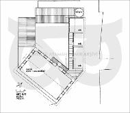
| dc.description.abstract | Antakya Tarihi Kent Merkezi, Zenginler Mah. Nakib Camii civarına ait 3 renkli, 6 siyah-beyaz fotoğraf ve 6 rölöve çizimini içermektedir. | en_US |
| dc.format | Pozitif film (orijinal fotoğraflar); JPEG (renkli ve siyah-beyaz fotoğraflar), JPEG/TIFF (rölöve çizimleri) | en_US |
| dc.language.iso | tur | en_US |
| dc.publisher | Mimar Sinan Güzel Sanatlar Üniversitesi | en_US |
| dc.rights | © MSGSÜ Ataman Demir Arşivi | en_US |
| dc.source | Ataman Demir Arşivi | en_US |
| dc.subject | Antakya (Türkiye)--Binalar, yapılar, vb. | en_US |
| dc.subject | Mimari koruma | en_US |
| dc.subject | Hatay / Antakya (Türkiye) | |
| dc.subject | Geleneksel mimari | |
| dc.subject | Yerel mimarlık (Vernacular architecture) | |
| dc.subject | Mimarsız mimarlık | |
| dc.subject | Tarihi bina | |
| dc.title | Zenginler Mah. Nakib Camii | en_US |
| dc.type | photograph; drawing / architectural plan | en_US |
| dc.relation.publicationcategory | Fotoğraf koleksiyonu | en_US |
Files in this item
This item appears in the following Collection(s)
-
Antakya Tarihi Kent Koleksiyonu [7]
Ataman Demir tarafından hazırlanmış, Antakya’nın geleneksel evlerine ait fotoğraflar, rölöveler ve kentsel mirası belgeleyen özel bir seçki.





























