Mimar Sinan Güzel Sanatlar Üniversitesi Açık Bilim, Sanat Arşivi
Açık Bilim, Sanat Arşivi, Mimar Sinan Güzel Sanatlar Üniversitesi tarafından doğrudan ve dolaylı olarak yayınlanan; kitap, makale, tez, bildiri, rapor gibi tüm akademik kaynakları uluslararası standartlarda dijital ortamda depolar, Üniversitenin akademik performansını izlemeye aracılık eder, kaynakları uzun süreli saklar ve yayınların etkisini artırmak için telif haklarına uygun olarak Açık Erişime sunar.MSGSÜ'de Ara
Ulucami Mahallesi Yıldız Sokak No: 41
| dc.coverage.spatial | Yıldız Sokak, Ulucami Mahallesi, Antakya / Hatay, Türkiye | en_US |
| dc.creator | Demir, Ataman | |
| dc.date.accessioned | 2026-04-15T08:28:25Z | |
| dc.date.available | 2026-04-15T08:28:25Z | |
| dc.date.created | 1973 | en_US |
| dc.identifier | R8 | en_US |
| dc.identifier.uri | https://hdl.handle.net/20.500.14124/10914 | |
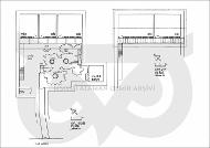
| dc.description.abstract | Antakya Tarihi Kent Merkezi, Ulucami Mah. Yıldız Sokak No:41'e ait 7 renkli, 8 siyah-beyaz fotoğraf ve 6 rölöve çizimini içermektedir. | en_US |
| dc.format | Pozitif film (orijinal fotoğraflar); JPEG (renkli ve siyah-beyaz fotoğraflar), JPEG/TIFF (rölöve çizimleri) | en_US |
| dc.language.iso | tur | en_US |
| dc.publisher | Mimar Sinan Güzel Sanatlar Üniversitesi | en_US |
| dc.rights | © MSGSÜ Ataman Demir Arşivi | en_US |
| dc.source | Ataman Demir Arşivi | en_US |
| dc.subject | Antakya (Türkiye)--Binalar, yapılar, vb. | en_US |
| dc.subject | Mimari koruma | en_US |
| dc.subject | Hatay / Antakya (Türkiye) | en_US |
| dc.subject | Geleneksel mimari | en_US |
| dc.subject | Yerel mimarlık (Vernacular architecture) | en_US |
| dc.subject | Mimarsız mimarlık | en_US |
| dc.subject | Tarihi bina | en_US |
| dc.title | Ulucami Mahallesi Yıldız Sokak No: 41 | en_US |
| dc.type | photograph | en_US |
| dc.type | architectural drawing | |
| dc.relation.publicationcategory | Görsel Materyal | en_US |
Bu öğenin dosyaları:
Bu öğe aşağıdaki koleksiyon(lar)da görünmektedir.
-
Antakya Tarihi Kent Koleksiyonu [14]
Ataman Demir tarafından hazırlanmış, Antakya’nın geleneksel evlerine ait fotoğraflar, rölöveler ve kentsel mirası belgeleyen özel bir seçki.



































